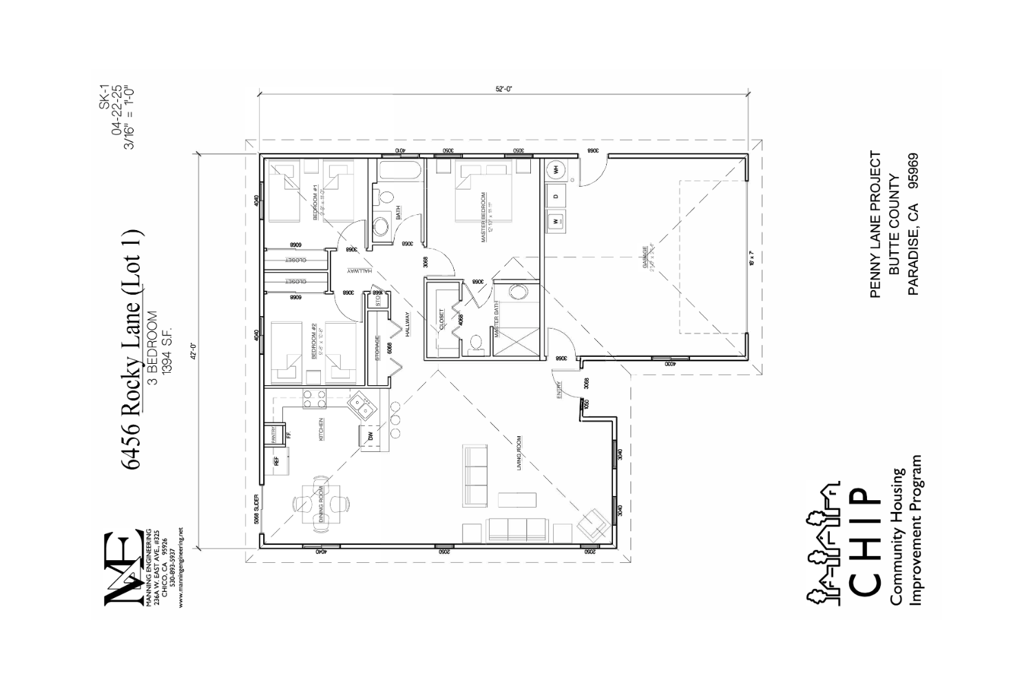
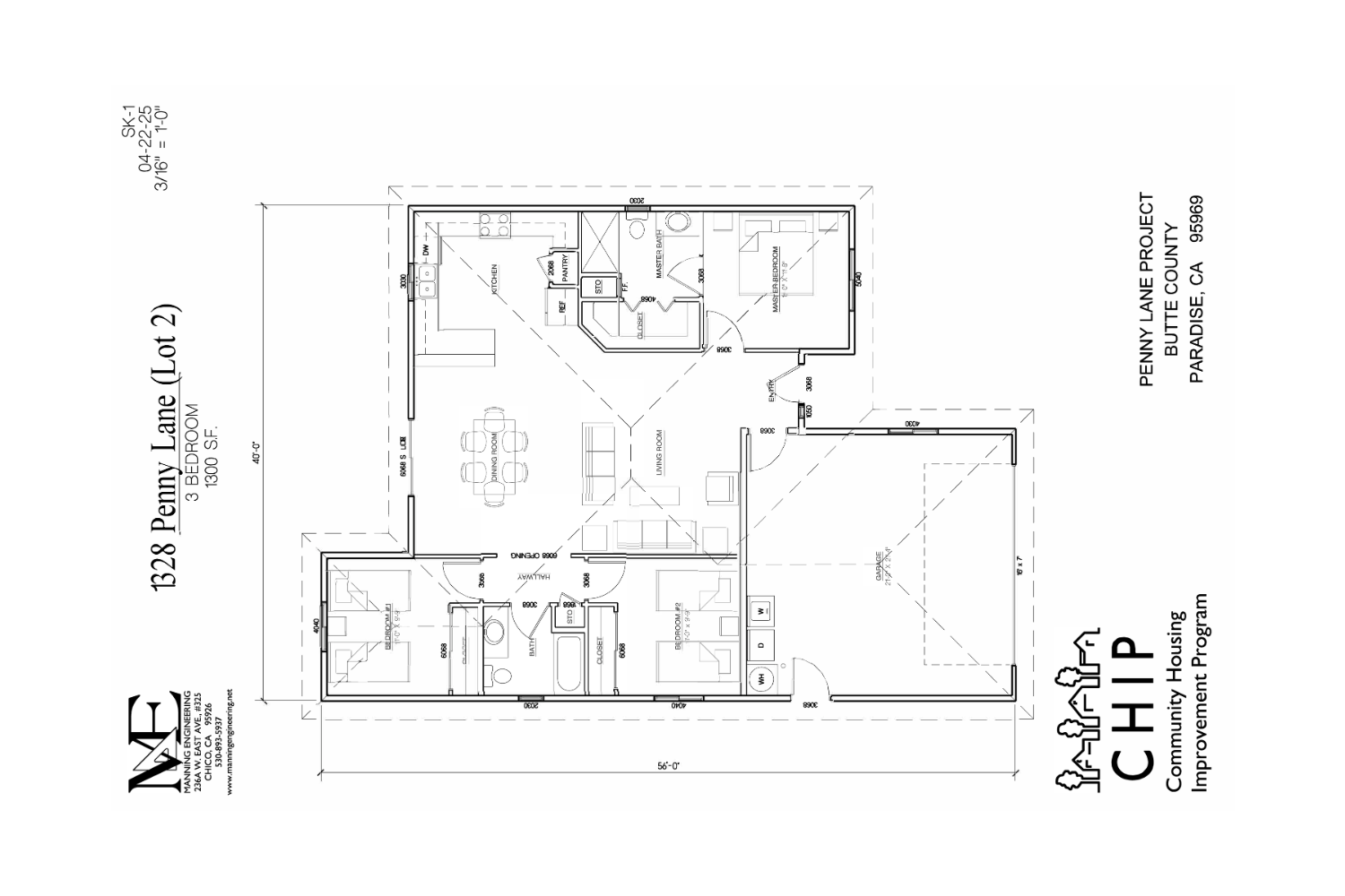
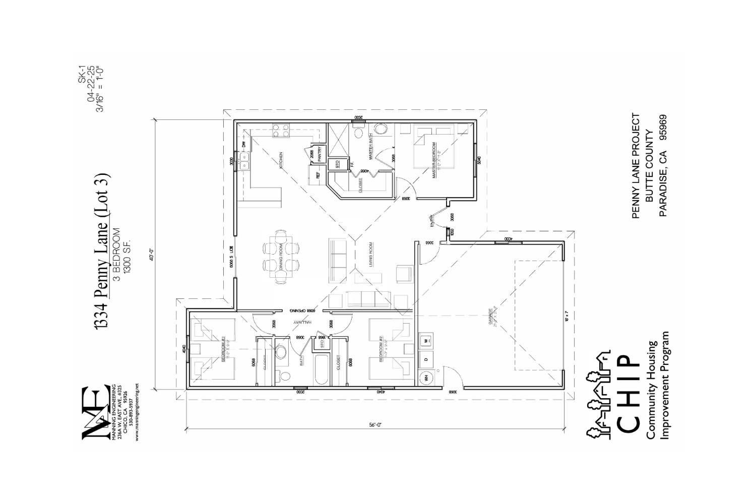
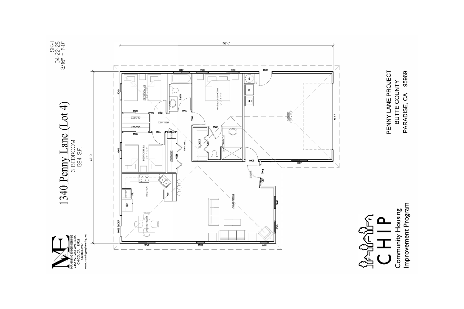
Overview
These four homes are under development by CHIP, with an expected completion date in the spring. The funding for this project comes from Tri Counties Bank, North Valley Community Foundation, the Town of Paradise, and Wells Fargo.
This is not a self-help housing development. The homes will be built by CHIP and the homebuyers will be purchasing finished homes. Tri Counties Bank will be reviewing interested homebuyers for eligibility. To see if you may qualify, please contact:
Andreas Fellner
(530) 351-1918
andreasfellner@tcbk.com
Jeromy Rhoades
(530) 514-8988
jeromyrhoades@tcbk.com
- Total Lots: 4
- Available Lots: 4
Additional Information
Low $300,000s
Must be at or below 80% AMI, though higher incomes may be allowed for Camp Fire survivors.








General Construction:
- Central heating/air conditioning
- Smoke detection alarms
- 1 carbon monoxide alarm
- Underground utilities
- Pre-wired Cable TV/Telephone (2 each)
- Fire sprinklers
Exteriors
- CA NRFC Certified windows/Low-E vinyl
- Laminated fiberglass asphalt roof shingles
- Rain gutters over doorways
- 6-foot cedar fencing
- Front yard landscape per city/county requirements and State's Water Efficient Landscape Ordinance
Living Area
- Vinyl flooring in bedrooms
- Vinyl flooring in Living Room, Dining Room, Bathrooms, and Kitchen
- White colored walls
Kitchen
- Oak and particle board cabinets
- Pilotless Ignition gas range/oven with hood
- Acrylic countertops
- Vinyl flooring
- Two-compartment stainless steel sink
- Garbage disposal
- Dishwasher
Bath
- Oak and particle board vanity cabinets
- One-piece fiberglass tub in guest bedroom
- One-piece fiber glass shower in master bedroom
- Recessed medicine cabinet with mirror
- Acrylic countertops
- Vinyl flooring
Energy Conservation
- CA NFRC Certified windows
- Fully insulated walls and ceiling
- Electric Heat Pump water heater (50 gal.)
- Programmable thermostat
- Water-conserving toilets and faucets
- Dual-Fuel heating
- High efficiency air conditioning
- Solar Panels
Garage
- Two-car garage, sectional roll-up metal door
- Laundry area with gas hookups
How to Become a Homeowner
- REACH OUT – When we connect, we’ll talk about your current needs and help you navigate any hurdles. There is a lot we can do to get you ready to pursue homeownership.
- APPLY – Find the right neighborhood and apply. If you have any questions or concerns, don’t forget we are here to help.
- START YOUR JOURNEY – You’ll be grouped with 6-8 other homeowners and you’ll build together under the direction of CHIP’s experienced construction staff. You’ll complete all of the homes together (typically 14-18 months).